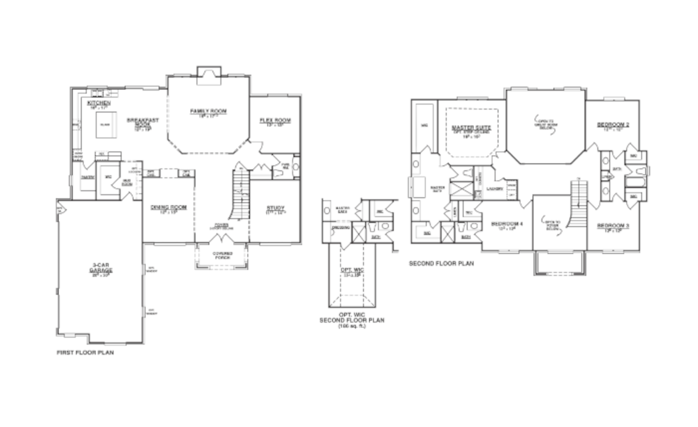
The Madison
Model:
The Madison ||
Sq. Ft.
3,627
<
Show Floor Plan
>
Download Plan
Close